Урбанистическая концепция жилого квартала на основе современных представлений о жизни вблизи мегаполиса.
Антоновка
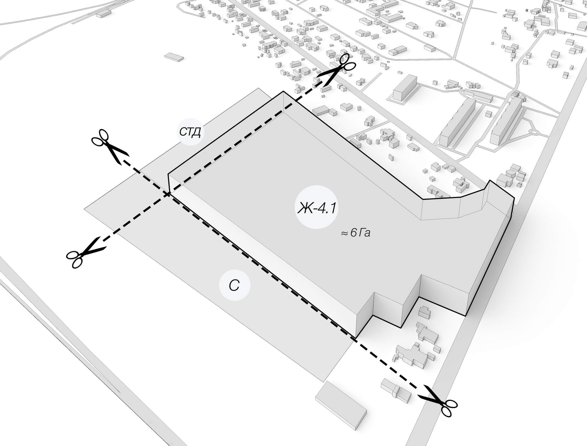
Участок находится во Всеволожском районе Ленинградской области, в непосредственной близости от границы с Санкт-Петербургом.

Приоритетами ставятся обеспечение жителей квартала недорогой комфортной средой с элементами природного ландшафта, пешеходными маршрутами и связью с существующим торговым центром, плоскостными спортивными сооружениями, достаточным количеством собственных и гостевых парковочных мест и создание «центра притяжения» для соседнего малоэтажного района.
1.Функциональный состав
2. Ограничения
3. Транспортный каркас
4. Статус функциональных зон